井堀北団地

-

福岡県北九州市小倉北区井堀2丁目1-31

日豊本線「南小倉」駅徒歩27分

価格
-
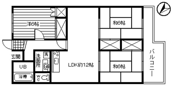
間取り/面積
-/-
所在地
福岡県北九州市小倉北区井堀2丁目1-31
築年
1975年11月(築50年)
交通

日豊本線南小倉」駅 徒歩27分

井堀北団地の基本情報

物件名
井堀北団地
価格
-
築年月
1975年11月(築50年)
総戸数
-
所在地
福岡県北九州市小倉北区井堀2丁目1-31
交通

日豊本線南小倉」駅 徒歩27分

井堀北団地の詳細情報

設備条件
設備(その他)
    -
土地権利
所有権
国土法届出
不要
用途地域
第一種中高層住居専用
販売戸数 / 総戸数
- / -
管理形態
自主管理
管理員の勤務形態
-
管理会社
-
取引態様
仲介
引渡し
相談
備考
平坦地なので、工事自体も進めやすく、工事時間も短くなりやすいですよ。この物件は快適な室内環境が魅力の中古マンションとなっています。立地している第一種中高層住居専用地域は、病院や老人福祉センターなどの医療福祉施設も建てることができます。こだわりある物件をお求めなら、地域に詳しい当社にご依頼下さい。経験豊富な当社スタッフがお客様のこだわりやご要望に適した物件のご紹介をいたします。ご連絡をお待ちしております。

井堀北団地のコメント(おすすめポイント)

「井堀北団地」:北九州市小倉北区エリアの新居にピッタリ。立地している第一種中高層住居専用地域は、それほど建物が密集したエリアではなく、住むことを目的とした住居専用地域です。アップダウンの少ない平坦地です。綺麗に整備された中古マンションで清潔感を感じます。不動産の購入をするなら、自身の生活スタイルに適した物件が良いでしょう。北九州市小倉北区にある南小倉周辺で物件をお求めなら、当社にお任せ下さい。

よく見られている物件

  1. 北九州市門司区東港町

    2LDK (71.43㎡)

    2,690万円

  2. 北九州市八幡西区瀬板1丁目

    3LDK (72.87㎡)

    1,790万円

  3. 北九州市戸畑区西大谷2丁目

    4LDK (85.94㎡)

    1,480万円

井堀北団地

お気軽にお問い合わせください

無料お問い合わせ

株式会社 アップリバー本店

093-482-2660

9:30~18:00

(休:日曜日・GW・年末年始)